
MIL-DTL-20078D
? Ø ¼ x 100º
100º
SH 1097
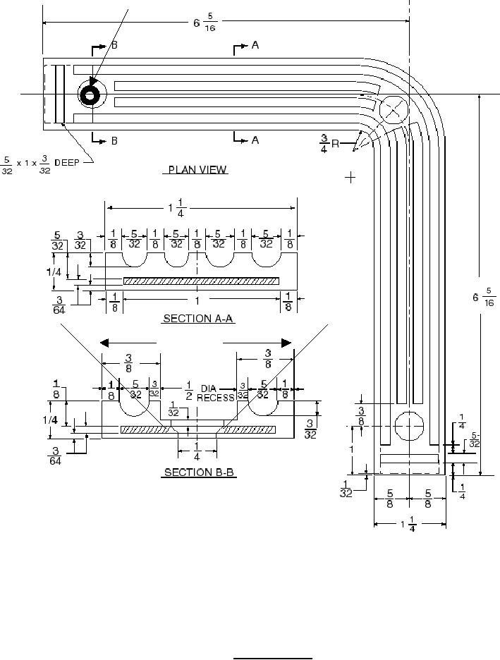
Note: For additional details of rubber gasket, see Figure 1.
FIGURE 2. Detail of type A-2.
8
For Parts Inquires call Parts Hangar, Inc (727) 493-0744
© Copyright 2015 Integrated Publishing, Inc.
A Service Disabled Veteran Owned Small Business