
INCH-POUND
AN887 REV. 2
1 February 2006
SUPERSEDING
AN887 REV. 1
30 April 1951
DETAIL SPECIFICATION SHEET
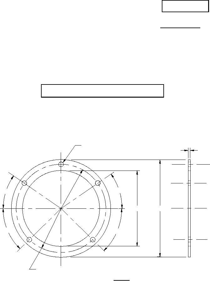
GASKET CIRCULAR FORMATION LIGHT COVER
Inactive for new design after 18 July 1997
This specification sheet is approved for use by all Departments and Agencies of the
Department of Defense.
The requirements for acquiring the product described herein shall consist of this specification
sheet.
Ø.156 5 HOLES
+.016
.063
-0
35°
35°
Ø3.219
Ø2.500
45°
45°
Ø2.906
FIGURE 1. Gasket
AMSC N/A
FSC 5330
For Parts Inquires call Parts Hangar, Inc (727) 493-0744
© Copyright 2015 Integrated Publishing, Inc.
A Service Disabled Veteran Owned Small Business