
A-A-52524/11
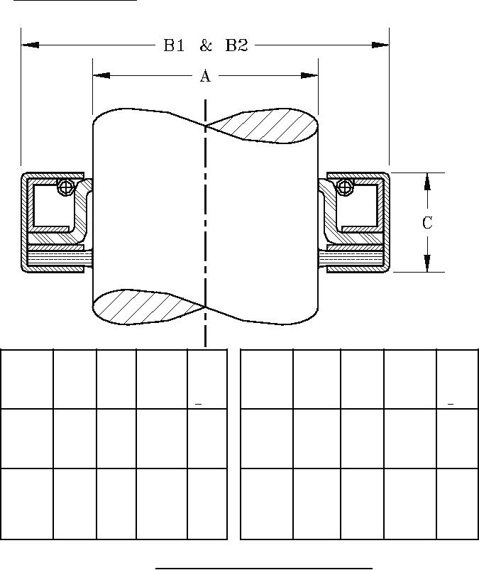
2.2 Design and construction. The seals (classes 1, 2, and 3 of CID A-A-52524) shall be designed
and constructed in accordance with figure 1.
First
A
B1
B2
First
A
B1
B2
Housing
C
Dash
Shaft
Seal
Housing
C
Dash
Shaft
Seal
Number
Dia
O.D.
Bore
Width
Number
Dia
O.D.
Bore
Width
(Size)
(Nom)
(1)
(Ref)
+ .020
(Size)
(Nom)
(1)
(Ref)
+ .020
21
.63
1.129
1.125
.500
30
2.38
3.358
3.353
.750
22
.94
1.832
1.828
.625
31
2.44
3.256
3.251
.750
23
1.56
2.441
2.437
.781
32
2.63
3.628
3.623
.750
24
1.63
2.441
2.437
.781
33
3.00
4.009
4.404
.750
25
1.63
2.506
2.502
.750
34
3.00
4.254
4.249
.750
26
1.75
2.627
2.623
.781
35
3.13
4.383
4.378
.813
27
2.00
3.001
2.997
.750
36
3.25
4.257
4.252
.750
28
2.13
2.879
2.875
.688
37
3.31
4.254
4.249
.625
29
2.25
3.001
2.997
.750
38
4.00
5.003
4.998
.938
Figure 1. Seal design, construction, and part number.
2
For Parts Inquires call Parts Hangar, Inc (727) 493-0744
© Copyright 2015 Integrated Publishing, Inc.
A Service Disabled Veteran Owned Small Business